Description
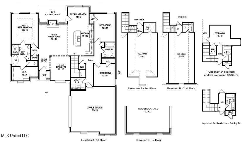
Seller is offering 4.99 Fixed interest financing through a designated lender AND up to $12,000 in closing costs OR up to $22,000 Your Way Concession to use towards Rate Buy Down, Closing Costs, or Design Center Credit on this home with a preferred lender!!! Our Weston B plan sits on over a half acre lot and includes a back porch and you will love the Great Room with fireplace with gas logs. The beautiful open floor plan features a great kitchen with large center island with a breakfast bar and tall designer staggered cabinets with crown molding and soft close doors and drawers, granite countertops and kitchen backsplash. The appliance package includes stainless steel GE Smooth cooktop range or option for a gas range with self cleaning oven , quiet dishwasher, built in microwave and disposal. The breakfast area is spacious and includes a large window for lots of natural light. There is a spacious dining room that could also be used as a home office. The Master Suite includes a trayed ceiling and relaxing bath with large tiled walk in shower and stand alone soaker tub, a double sink vanity with quartz countertops, and a spacious walk in closet with wood shelving. The split bedroom plan has two bedrooms and a full bath on the opposite side of the home allowing more privacy for the master suite. Luxury VInyl flooring flows through the entire first floor except for the bathrooms which have tile flooring. Smooth ceilings, rounded corners, and crown molding are included as well as wood stair treads, laundry room cabinets, and wood shelving in closets. Upstairs there is a large bonus room with a closet (could also be a 4th bedroom) AND a full bath. Located just minutes from Award winning Lewisburg schools and interstate 269. New Construction in the Award Winning Lewisburg School District!!! Home is move in ready!!
-
4BEDS
-
0.61ACRES
-
3BATHS
-
01/2 BATHS
-
2,468SQFT
-
$171$/SQFT
School Information
Description
Seller is offering 4.99 Fixed interest financing through a designated lender AND up to $12,000 in closing costs OR up to $22,000 Your Way Concession to use towards Rate Buy Down, Closing Costs, or Design Center Credit on this home with a preferred lender!!! Our Weston B plan sits on over a half acre lot and includes a back porch and you will love the Great Room with fireplace with gas logs. The beautiful open floor plan features a great kitchen with large center island with a breakfast bar and tall designer staggered cabinets with crown molding and soft close doors and drawers, granite countertops and kitchen backsplash. The appliance package includes stainless steel GE Smooth cooktop range or option for a gas range with self cleaning oven , quiet dishwasher, built in microwave and disposal. The breakfast area is spacious and includes a large window for lots of natural light. There is a spacious dining room that could also be used as a home office. The Master Suite includes a trayed ceiling and relaxing bath with large tiled walk in shower and stand alone soaker tub, a double sink vanity with quartz countertops, and a spacious walk in closet with wood shelving. The split bedroom plan has two bedrooms and a full bath on the opposite side of the home allowing more privacy for the master suite. Luxury VInyl flooring flows through the entire first floor except for the bathrooms which have tile flooring. Smooth ceilings, rounded corners, and crown molding are included as well as wood stair treads, laundry room cabinets, and wood shelving in closets. Upstairs there is a large bonus room with a closet (could also be a 4th bedroom) AND a full bath. Located just minutes from Award winning Lewisburg schools and interstate 269. New Construction in the Award Winning Lewisburg School District!!! Home is move in ready!!
